VS 40 - Te Koop

We zijn verheugd om u drie prachtig gerenoveerde appartementen aan te bieden, gelegen in de Vooruitzichtstraat 40, te Borgerhout.

Dit project heeft een grondige renovatie ondergaan met een stedenbouwkundige vergunning. De woning is tot op de structuur gestript en vanaf nul volledig opnieuw opgebouwd. Denk hierbij aan akoestisch ontkoppelde vloeren, brandwerende akoestische verlaagde plafonds, akoestische voorzetwanden, volledig nieuwe elektriciteit, sanitair en ventilatie, nieuwe lucht/lucht warmtepompen die zowel kunnen koelen als verwarmen, gevel- en dakisolatie, gevelrenovatie en hoogwaardige afwerkingsmaterialen.
Geniet hierdoor van de charme van enkele authentieke elementen in combinatie met het comfort van hedendaagse technieken.

Als partner werken we steeds samen met Interieur Dewaide. Samen met dit interieur-bureau creëerden we een unieke ontwerpstijl voor dit project dewelke wordt doorgetrokken in elk appartement. Door daarbij enkele accenten anders te leggen, geven we elk appartement een eigenheid zodat je echt kan pronken met een uniek appartement van Novus RED.

Tot slot is ook de locatie van deze appartementen een enorme troef. Gelegen aan een brede en rustige groene straat, bent u omgeven door de levendigheid van de stad. Vlakbij bevindt zich de speeltuin aan het Terloplein met eveneens toegang tot de stadsvélo’s. Fiets of wandel naar het populaire Krugerpark, doe een terrasje aan het hippe Laar of breng een bezoekje aan de bruisende Dageraadplaats.

Dit is een zeldzame gelegenheid om een stukje geschiedenis te omarmen terwijl u geniet van het comfort van moderne voorzieningen. Aarzel niet om contact met ons op te nemen voor meer informatie of om een bezichtiging in te plannen. Wij nodigen u uit om de unieke charme van deze prachtige gerenoveerde appartementen zelf te ervaren. Welkom thuis!

Appartement 001

53 m2

Verdiep 0

1 slaapkamer

1 badkamer

geen

Appartement 101

55 m2

Verdiep 1

1 slaapkamer

1 badkamer

5 m2

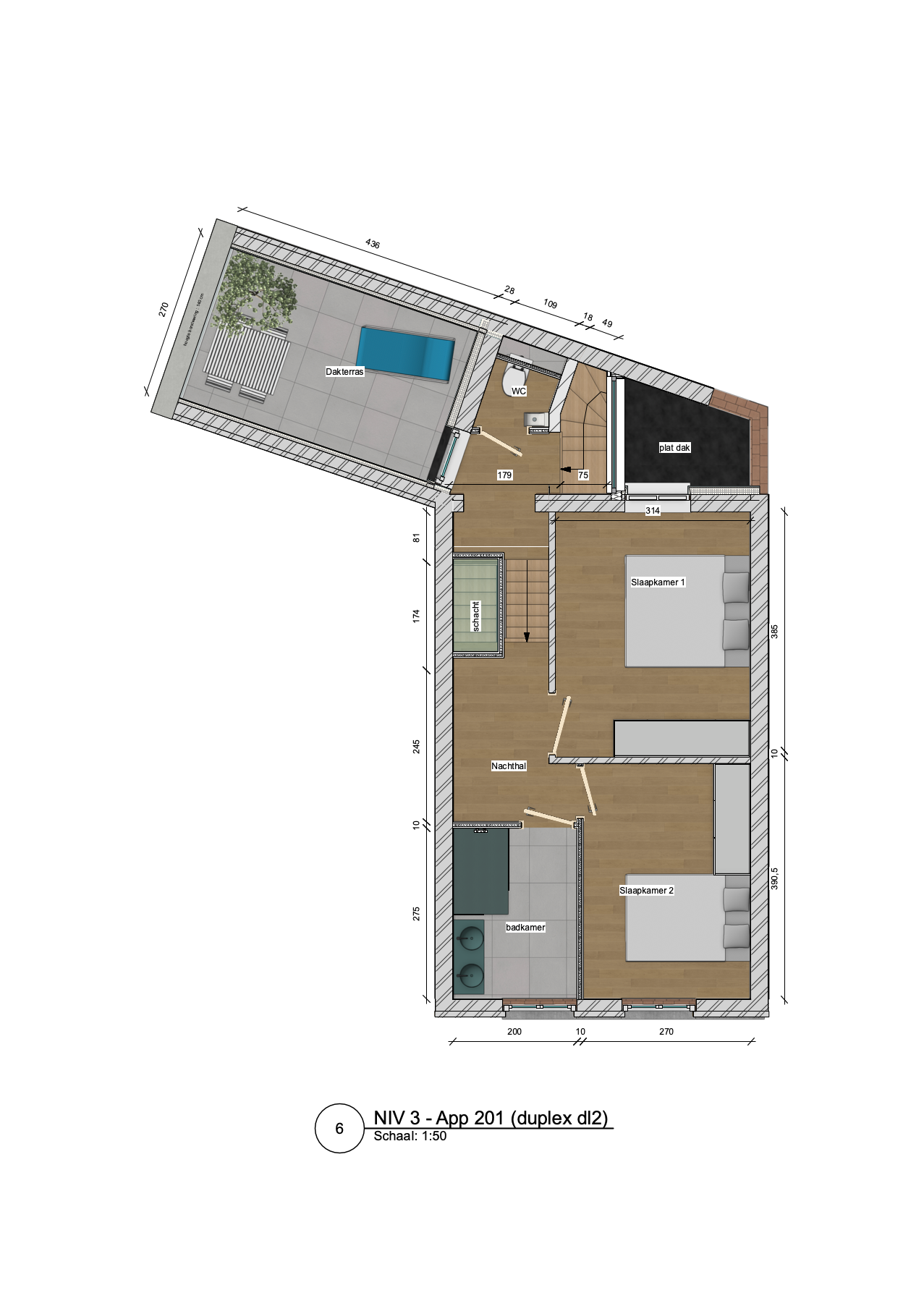
Appartement 201 - triplex

113 m2

Verdiep 2 & 3

3 slaapkamers

1 badkamer

13 m2

Contacteer ons!

Heb je een vraag of ben je op zoek naar meer informatie? Neem dan vrijblijvend contact met ons op.


Ringlaan 74/2, 2610 Wilrijk
België

+32 (0)4 94 60 42 70
info@novus-red.be